Gebiedsontwikkeling Heidelust
Tijdens de raadsvergadering van 21 december is een raadsvoorstel besproken voor de gebiedsontwikkeling Heidelust. Het gaat hier over het stuk grond op het voormalige SCI-terrein. Hiervoor zijn de afgelopen jaren al diverse plannen geweest maar deze moesten voortdurend worden bijgesteld door inzichten vanuit waterschap en provincie.
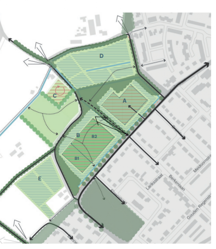
In het raadsvoorstel wat nu werd aangeboden werd gevraagd te kiezen om het educatief cluster van de Bolster te verplaatsen naar het terrein om daarnaast een landschapspark te realiseren met tijdelijke woningen. Op de huidige locatie van de Bolster aan de Ericastraat komt dan ruimte voor woningbouw. Dit scenario heeft de voorkeur van het schoolbestuur. Zij denken hier een prachtige plek te kunnen maken voor de kinderen die gebruik maken van de school en de opvang. Daarnaast heeft dit plan de grootste kans op goedkeuring vanuit de provincie en waterschap.
DorpsGoed is voorstander van het inzetten van flexibele woningen om sneller te kunnen voldoen aan de huidige hoge vraag naar woningen. Dit geeft lucht op de woningmarkt en biedt kleinere woningen waar vanuit jongeren en ouderen extra vraag naar is. Maar ook om daarna weer ruimte te maken voor groen of andere ontwikkelingen.
Tijdens de raadsvergadering werd er door diverse partijen ook een amendement ingediend om halverwege de looptijd van de geplaatste tijdelijke woningen een onderzoek in te stellen voor permanente woningen. DorpsGoed heeft hierin niet meegestemd. Wij vinden dat tijdelijke woningen ook als zodanig moeten worden ingezet. Hierbij blijft de overheid betrouwbaar en weten omwonenden waar ze aan toe zijn. Mocht gedurende het proces een nieuw plan voor een locatie ontstaan, dan kan er op dat moment een onderzoek worden gestart. DorpsGoed vindt het niet passend om dat al bij de start vast te leggen. Helaas had de meerderheid van de raad een andere mening en zal dit onderzoek er wel komen.
Meer weten over dit raadsbesluit? Lees het op het raadsinformatiesysteem.



